
Газовая печь «Тройка 04»: компактная мощь и выбор вашего стиля
Идеальное решение для небольшой парной.
Газовая печь «Тройка 04» сочетает в себе компактные размеры, оптимизированные для ограниченного пространства, и мощь современных технологий для получения безупречного пара.
Благодаря газовой автоматике и интеллектуальной системе управления, она обеспечивает максимальный комфорт и безопасность, освобождая вас от необходимости постоянно контролировать процесс.
Ключевые особенности газовой модификации
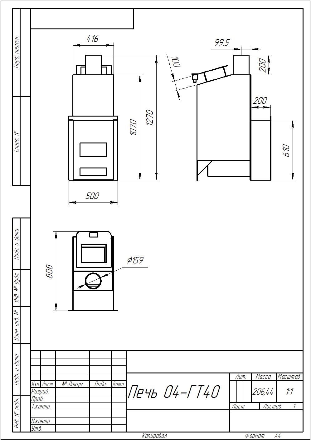
Конфигурация печи 04 с её скошенной верхней частью каменки идеально подходит для небольших парных, обеспечивая удобное и безопасное поддавание воды без риска обжечься.
Она работает на природном или сжиженном газе и оснащена надёжной системой автоматики, которая самостоятельно поддерживает заданную температуру в парной. Это обеспечивает стабильный микроклимат и экономит ваше время.
Печь обладает высокой надёжностью: корпус из стали толщиной 8 мм и усиленная 20-мм плита в зоне каменки гарантируют срок службы более 15 лет.
Печь под обкладку кирпичом для вашего идеального климата:
Кирпич создаёт классический мягкий климат русской бани. Он даёт комфортное, «солнечное» излучение, накапливает тепло для длительного его сохранения, полностью гасит жёсткое излучение от металла и обеспечивает максимальную пожаробезопасность.
Вы получаете мощный источник пара от закрытой каменки с подачей воды в нижнюю раскалённую зону (свыше 500°C) для мгновенного образования лёгкого «невидимого» пара.
Технические характеристики ·
Тип топлива: Природный / сжиженный газ (газгольдер). ·
Тип каменки: Закрытая, невентилируемая. ·
Материал корпуса: Конструкционная сталь, 8 мм (корпус), 20 мм (днище каменки). ·
Подключение: Длинный топочный тоннель для вывода в предбанник. ·
Дымоход: Увеличенного диаметра с ревизионным лючком. ·
Комплектация: Транспортировочные колеса.
Для покупки товара в нашем интернет-магазине выберите понравившийся товар и добавьте его в корзину. Далее перейдите в Корзину и нажмите на «Оформить заказ» или «Быстрый заказ».
Когда оформляете быстрый заказ, напишите ФИО, телефон и e-mail. Вам перезвонит менеджер и уточнит условия заказа. По результатам разговора вам придет подтверждение оформления товара на почту или через СМС. Теперь останется только ждать доставки и радоваться новой покупке.
Оформление заказа в стандартном режиме выглядит следующим образом. Заполняете полностью форму по последовательным этапам: адрес, способ доставки, оплаты, данные о себе. Советуем в комментарии к заказу написать информацию, которая поможет курьеру вас найти. Нажмите кнопку «Оформить заказ».
Оплачивайте покупки удобным способом. В интернет-магазине доступно 3 варианта оплаты:
- Наличные при самовывозе или доставке курьером. Специалист свяжется с вами в день доставки, чтобы уточнить время и заранее подготовить сдачу с любой купюры. Вы подписываете товаросопроводительные документы, вносите денежные средства, получаете товар и чек.
- Безналичный расчет при самовывозе или оформлении в интернет-магазине: карты Visa и MasterCard. Чтобы оплатить покупку, система перенаправит вас на сервер системы ASSIST. Здесь нужно ввести номер карты, срок действия и имя держателя.
- Электронные системы при онлайн-заказе: PayPal, WebMoney и Яндекс.Деньги. Для совершения покупки система перенаправит вас на страницу платежного сервиса. Здесь необходимо заполнить форму по инструкции.
Экономьте время на получении заказа. В интернет-магазине доступно 4 варианта доставки:
- Курьерская доставка работает с 9.00 до 19.00. Когда товар поступит на склад, курьерская служба свяжется для уточнения деталей. Специалист предложит выбрать удобное время доставки и уточнит адрес. Осмотрите упаковку на целостность и соответствие указанной комплектации.
- Самовывоз из магазина. Список торговых точек для выбора появится в корзине. Когда заказ поступит на склад, вам придет уведомление. Для получения заказа обратитесь к сотруднику в кассовой зоне и назовите номер.
- Постамат. Когда заказ поступит на точку, на ваш телефон или e-mail придет уникальный код. Заказ нужно оплатить в терминале постамата. Срок хранения — 3 дня.
- Почтовая доставка через почту России. Когда заказ придет в отделение, на ваш адрес придет извещение о посылке. Перед оплатой вы можете оценить состояние коробки: вес, целостность. Вскрывать коробку самостоятельно вы можете только после оплаты заказа. Один заказ может содержать не больше 10 позиций и его стоимость не должна превышать 100 000 р.
Установка печей
Нужна установка печи в Нижнем Новгороде? Можем помочь! Наша компания сотрудничает с монтажными организациями, которые способны качественно выполнить любой вид работ: от монтажа отопительного оборудования до сборки мраморных порталов к каминным топкам. Профессиональные специалисты имеют большой опыт и обязательно соблюдают принятые нормы пожарной безопасности. Все монтажники имеют необходимые пожарные сертификаты, выданные МЧС России.
Подробнее
Монтаж дымоходов
В нашей компании в Нижнем Новгороде "Дом Печей" при покупке отопительного оборудования вы можете заказать монтаж дымоходов. Мы сотрудничаем с профессиональными монтажниками, которые прекрасно знают свое дело. Специалисты выполнили сотни заказов, они обязательно максимально качественно справятся со своими задачами. Обращайтесь за монтажом к нам!
Подробнее
